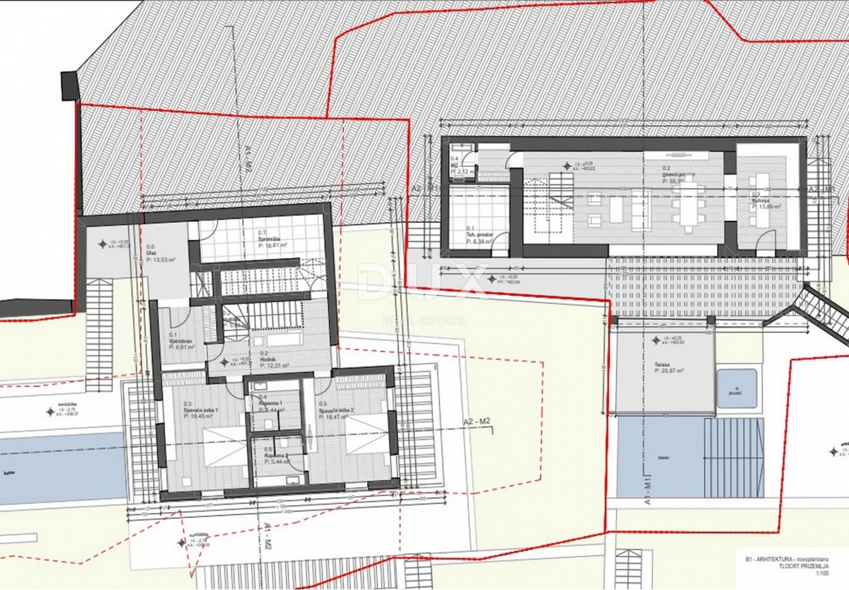
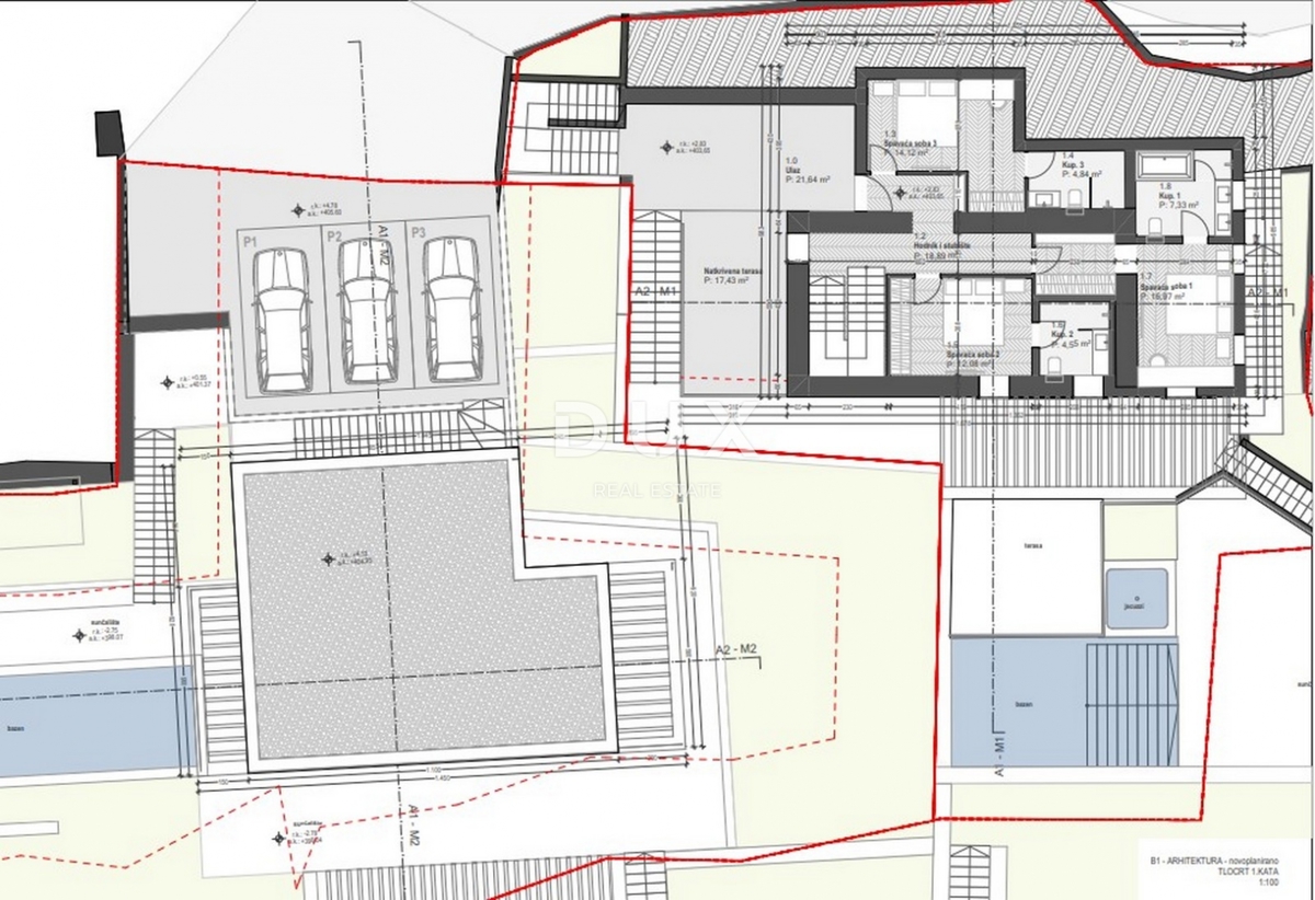
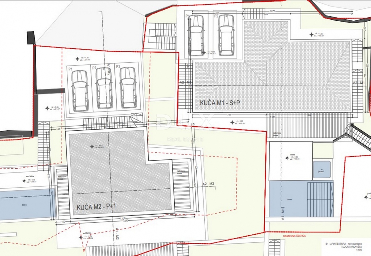
REC ID# 1245326 - POLJANE