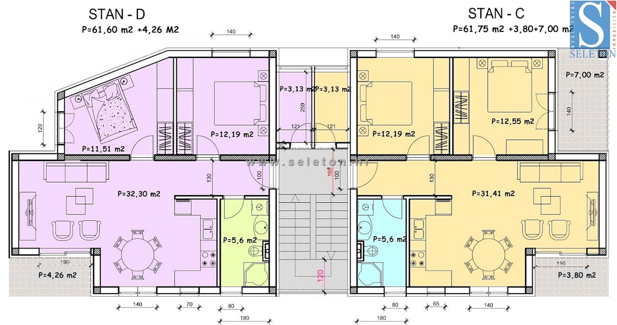
REC ID# 1201700 - POREČ