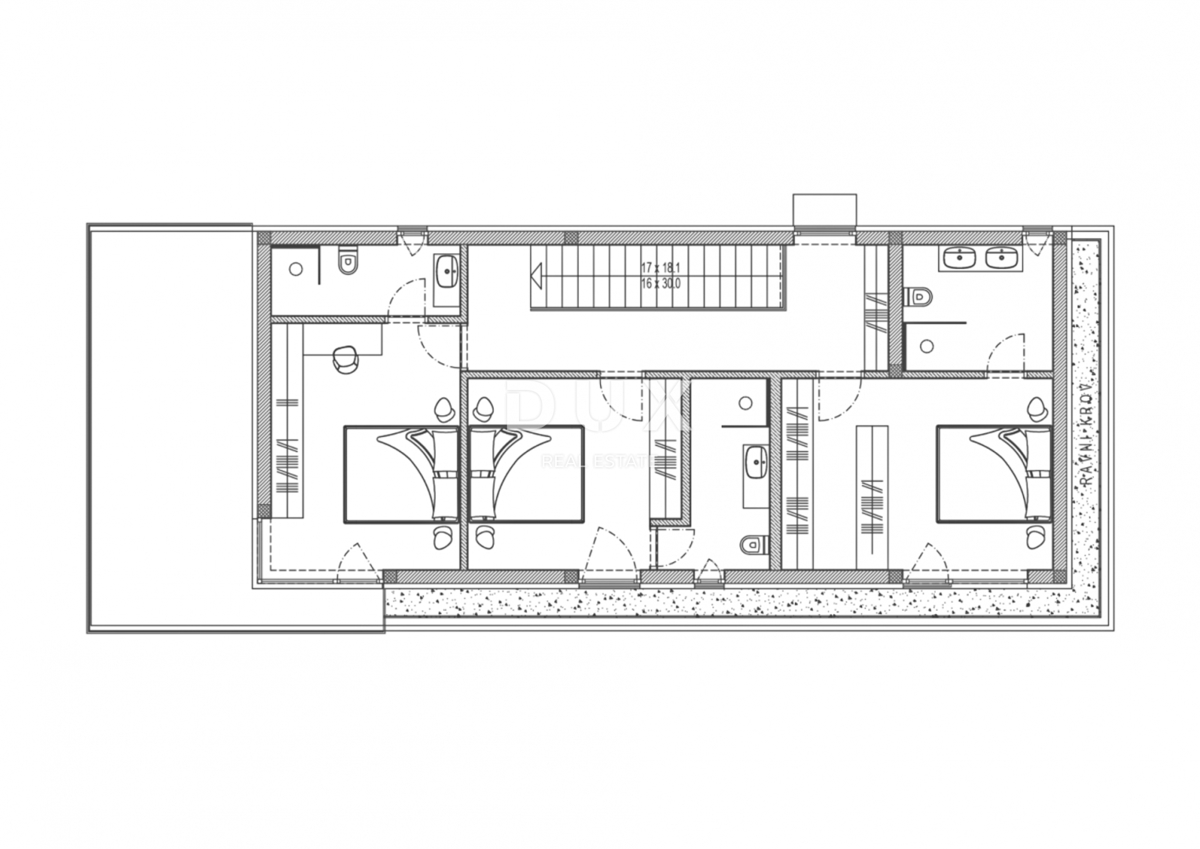
REC ID# 1225952 - POREČ