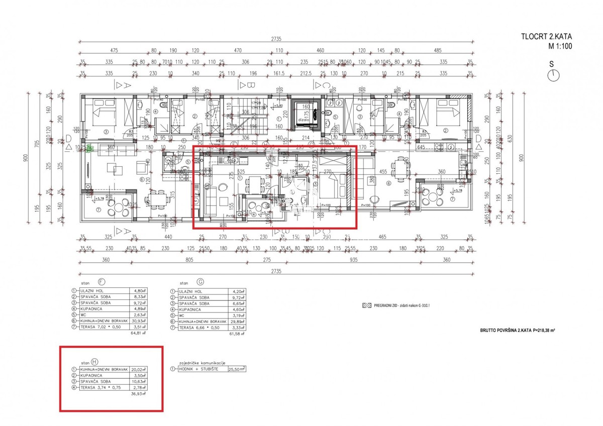
REC ID# 1230486 - POREČ