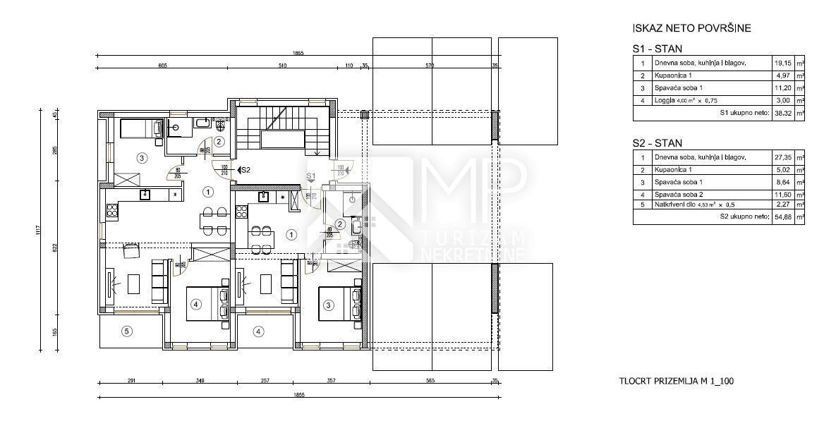
REC ID# 1122940 - PULA