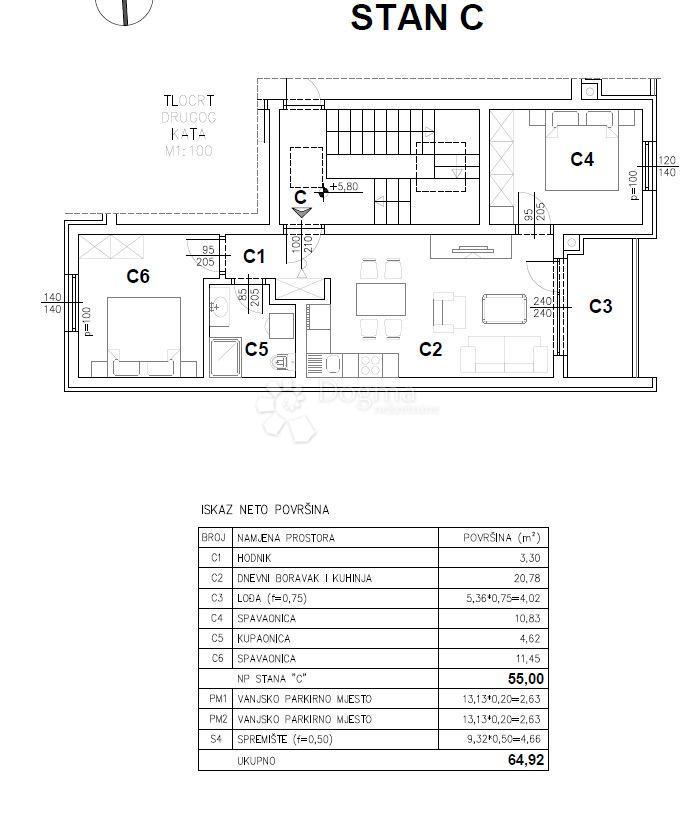
REC ID# 1231771 - PULA