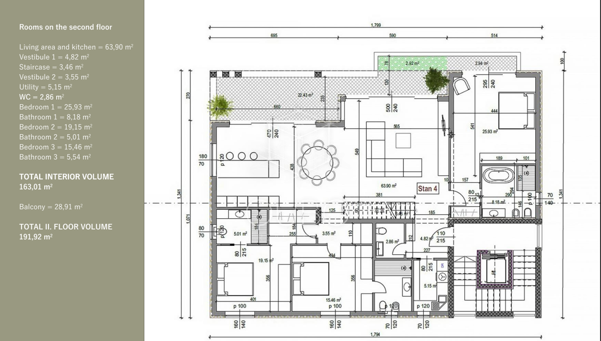
REC ID# 1244555 - ROVINJ