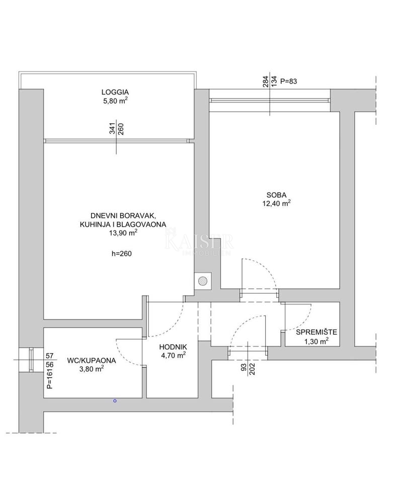
REC ID# 1253013 - SENJ