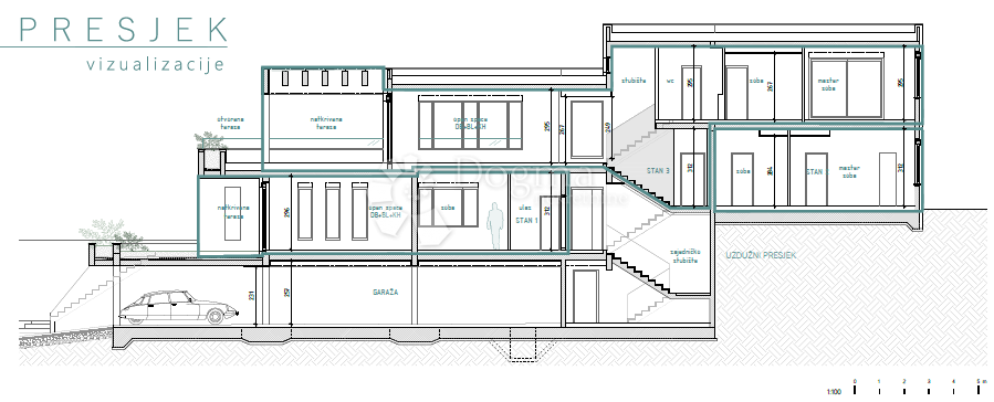
REC ID# 1246711 - ČRNOMEREC