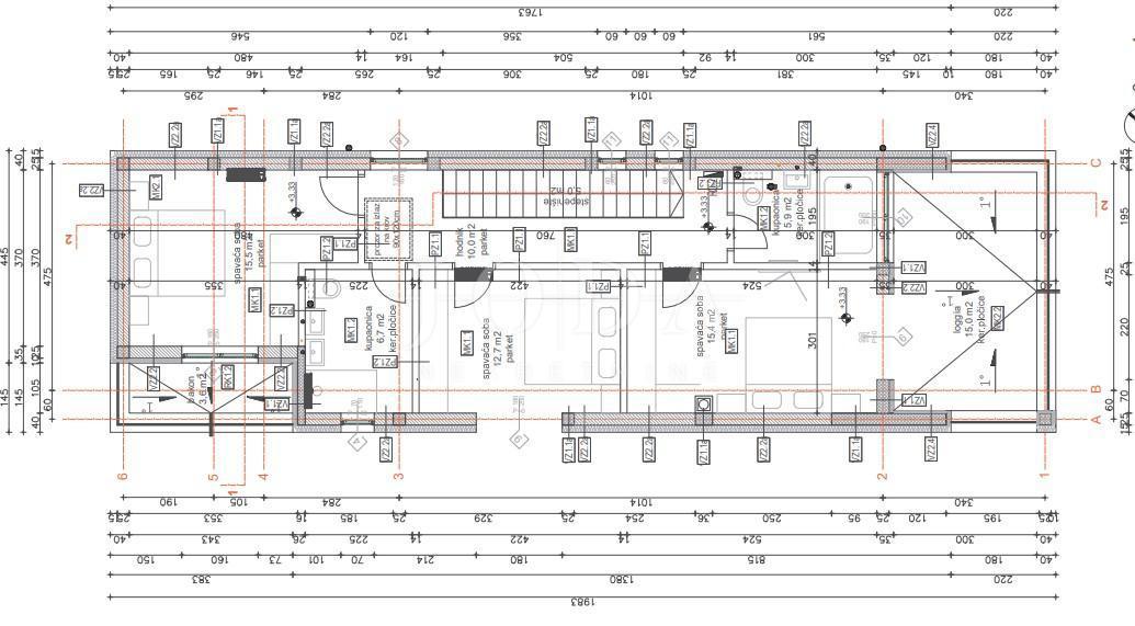
REC ID# 1230408 - BAŠKA