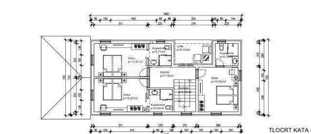
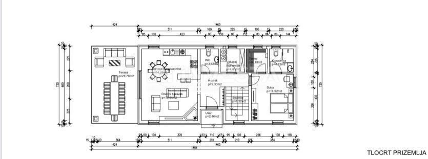
REC ID# 1109289 - BARBAN