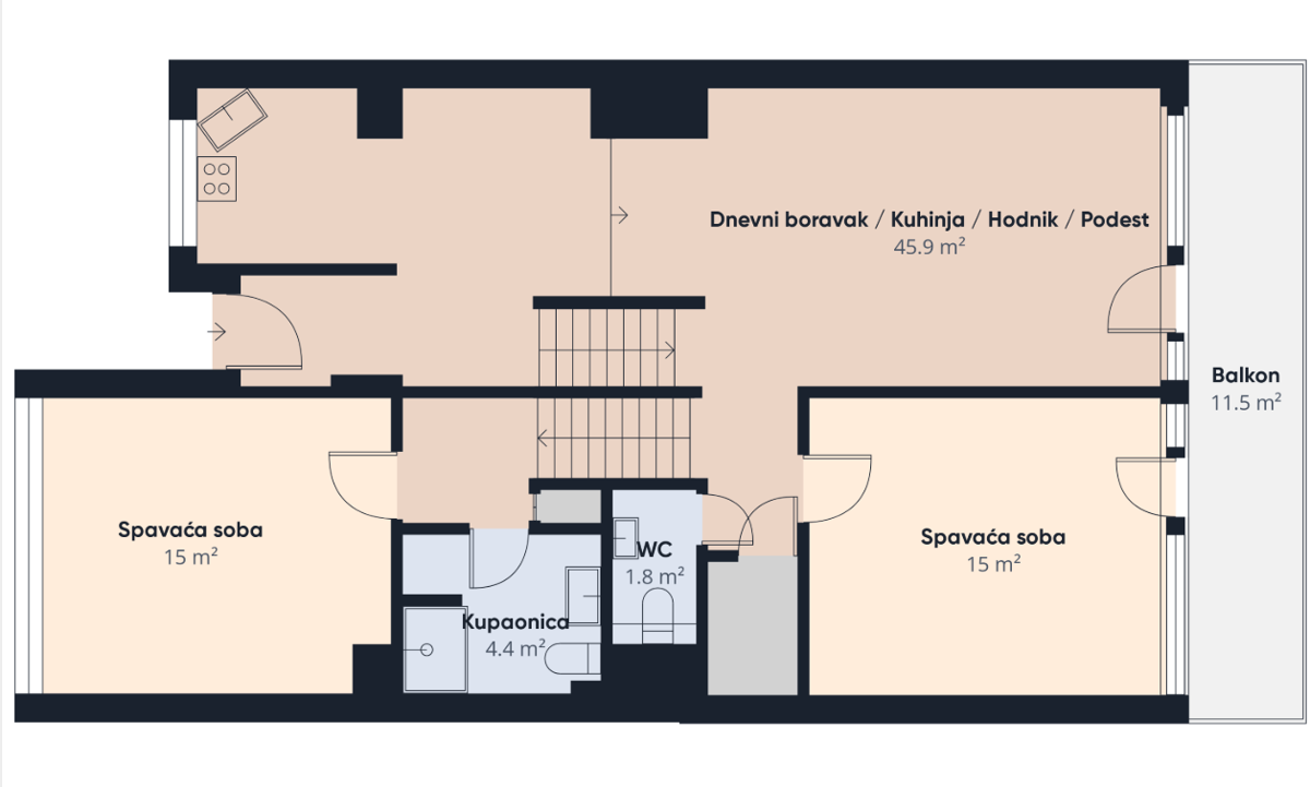
REC ID# 1256180 - BLATO