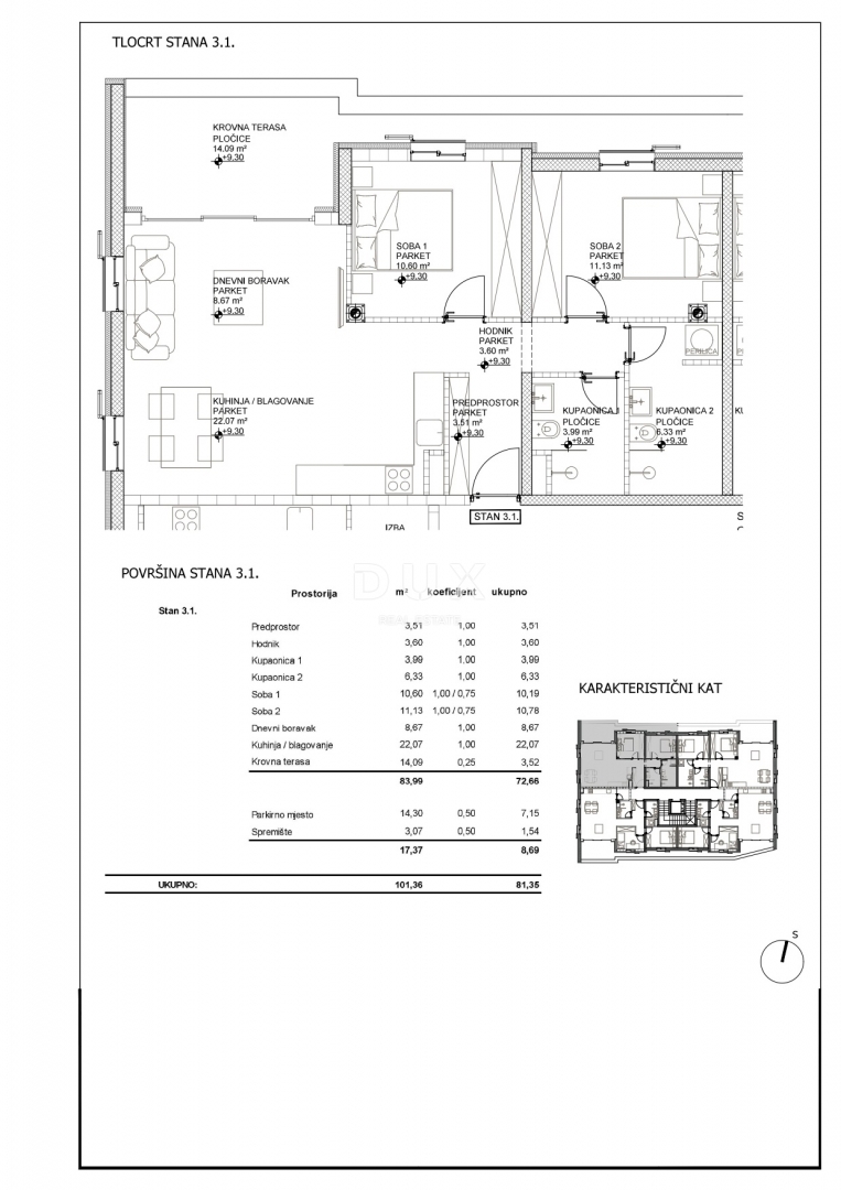
REC ID# 1247545 - CRES