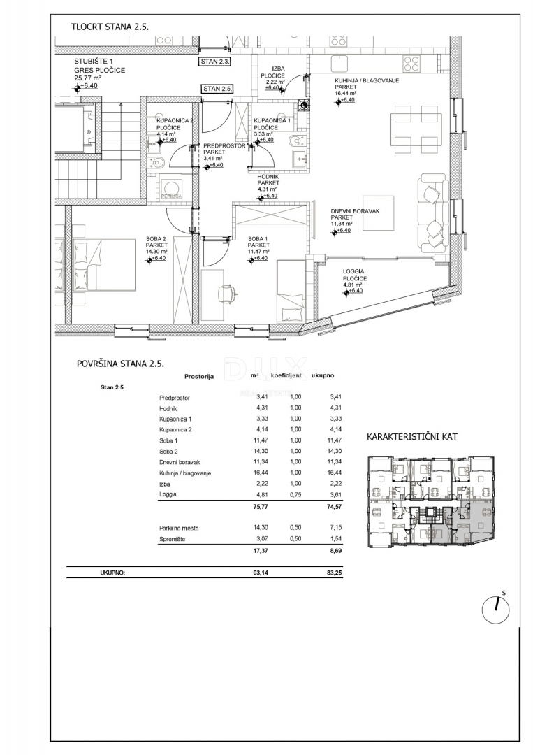
REC ID# 1247546 - CRES