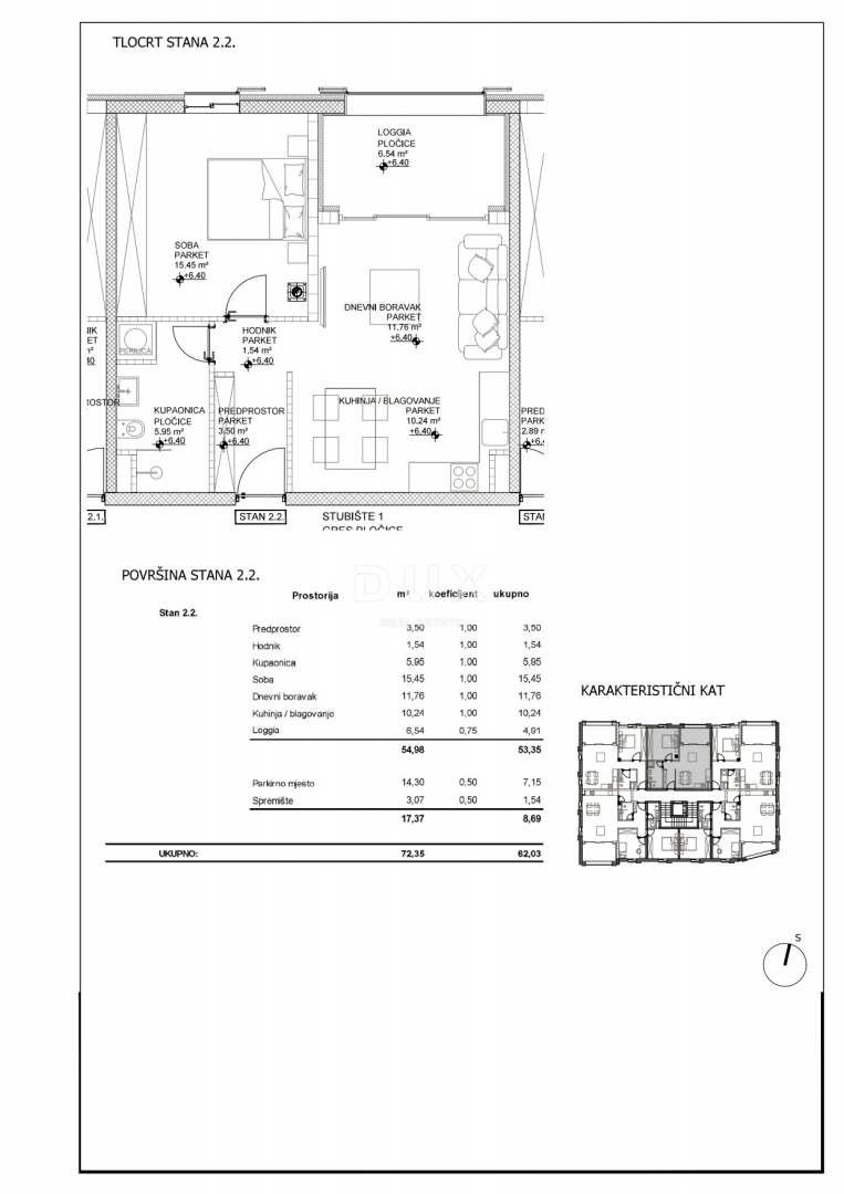
REC ID# 1247548 - CRES