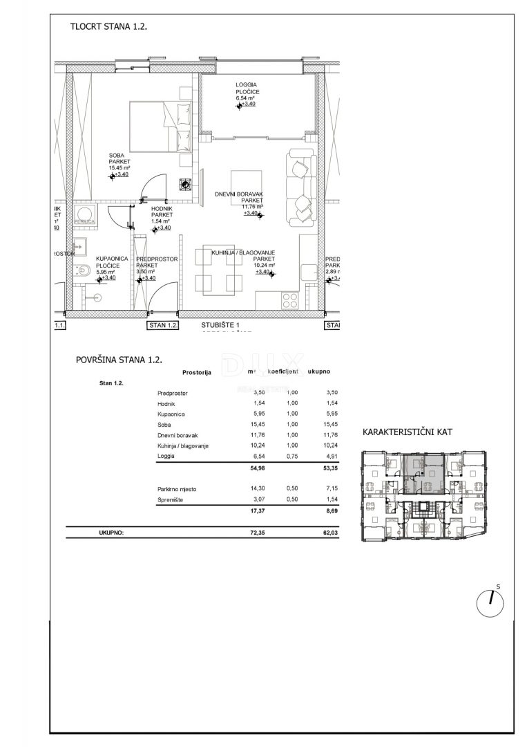
REC ID# 1247552 - CRES