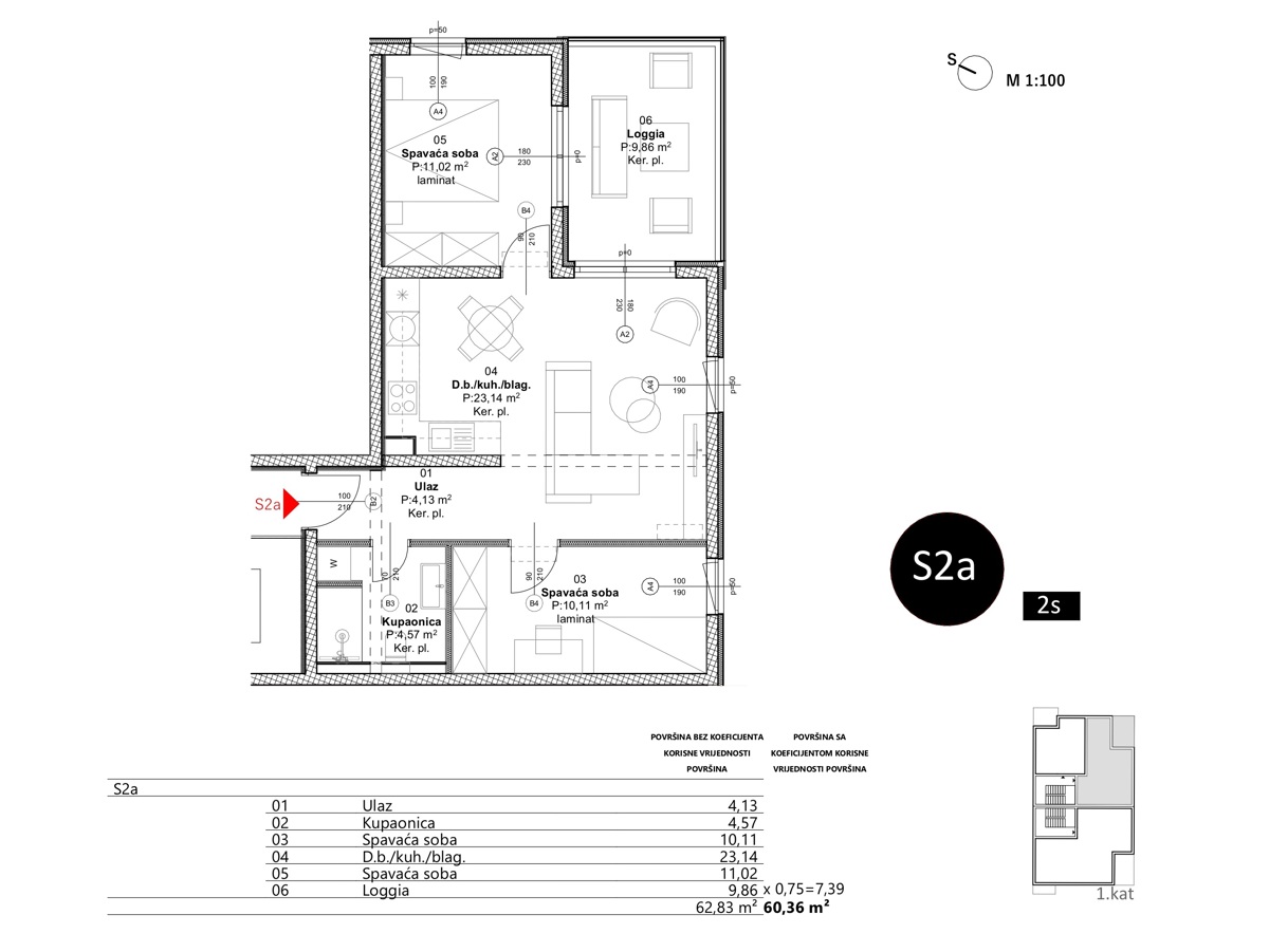
REC ID# 1186545 - DUBROVNIK