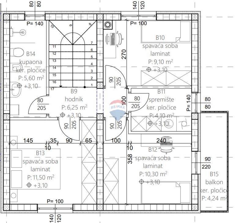
REC ID# 1237545 - KAŠTEL