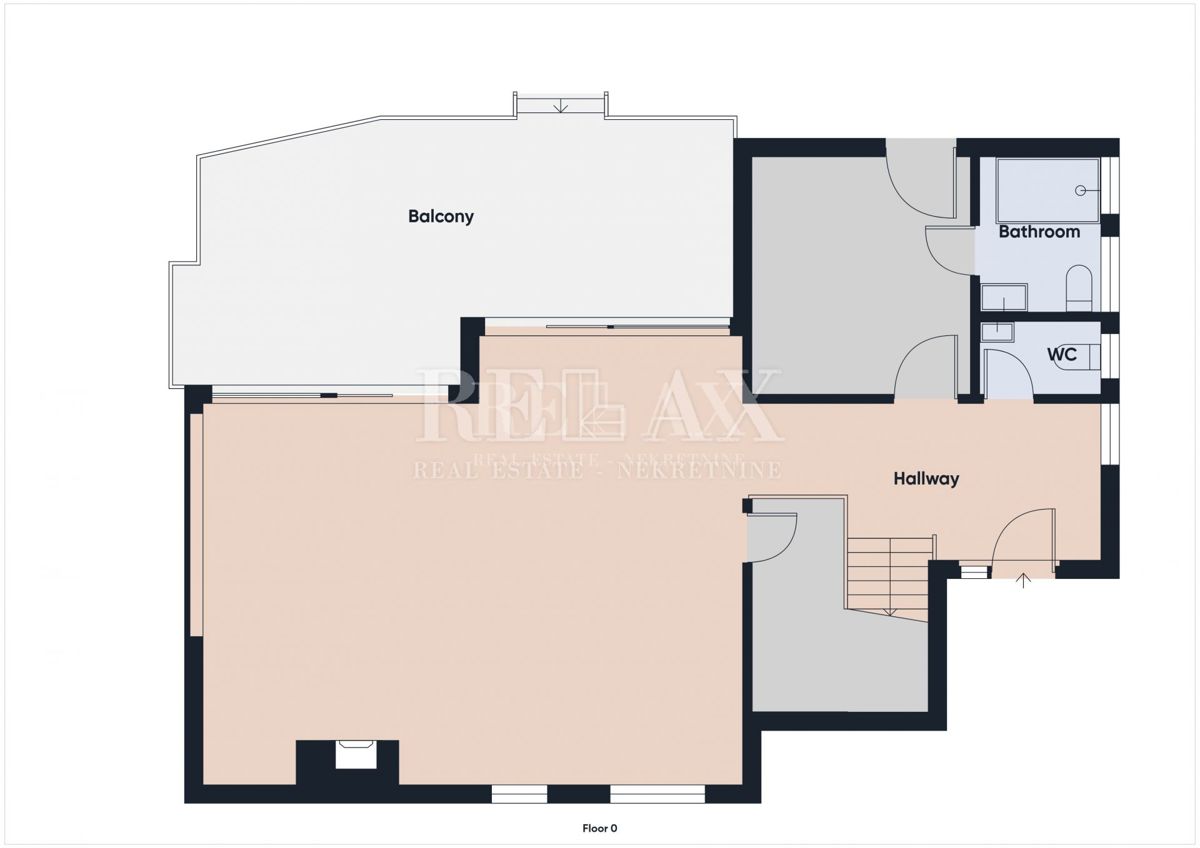
REC ID# 1230162 - KORNIĆ