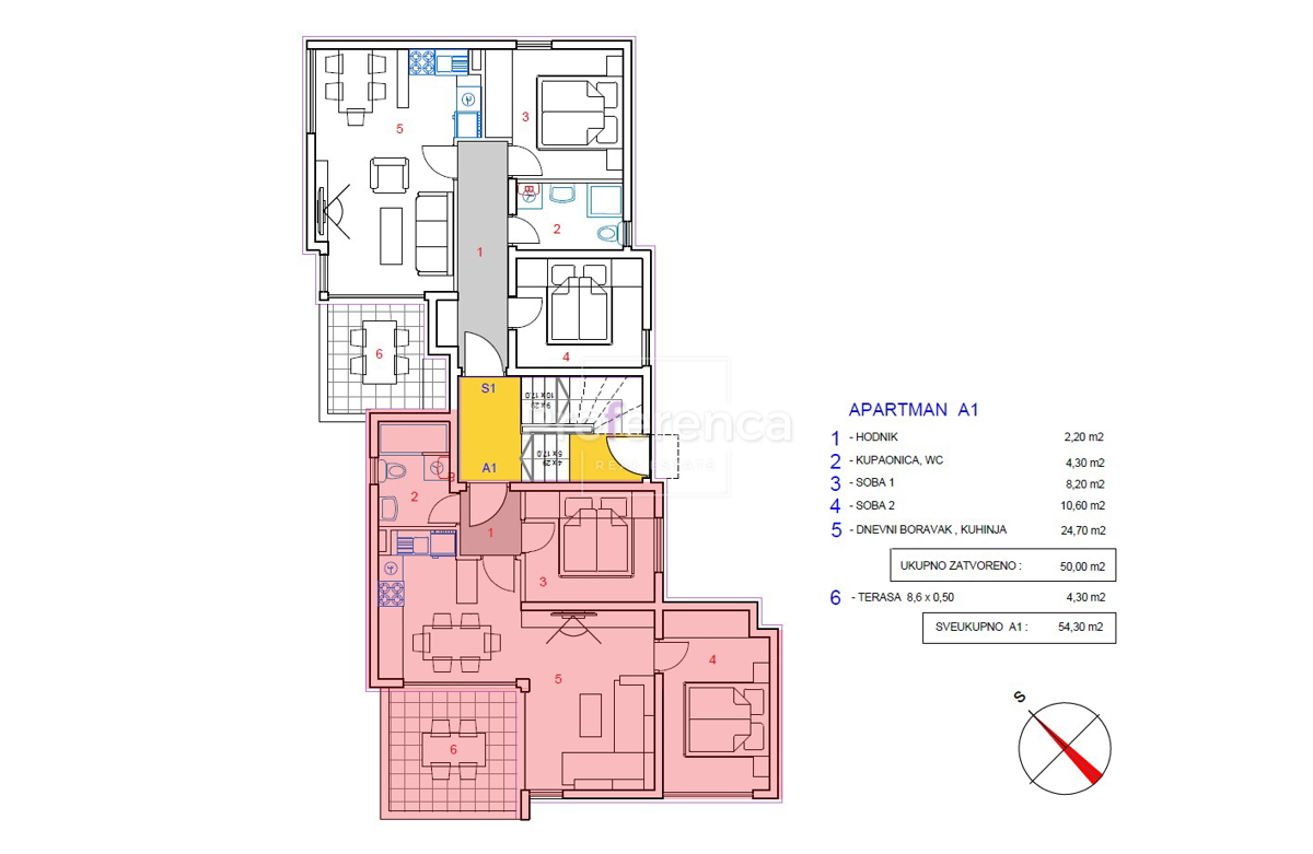
REC ID# 1233873 - NOVALJA