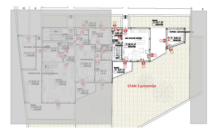
REC ID# 1238688 - POVILE