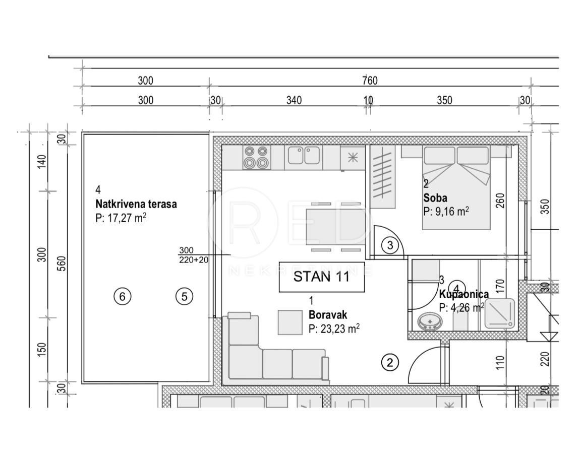
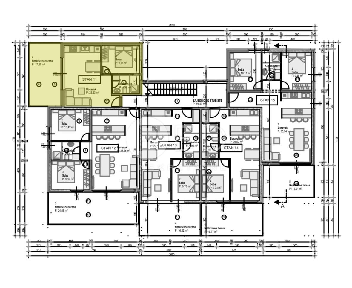
REC ID# 1234825 - POVLJANA