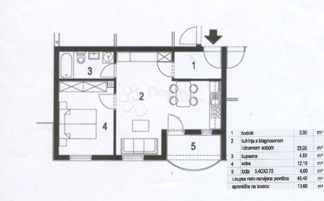
REC ID# 1245179 - ROVINJ