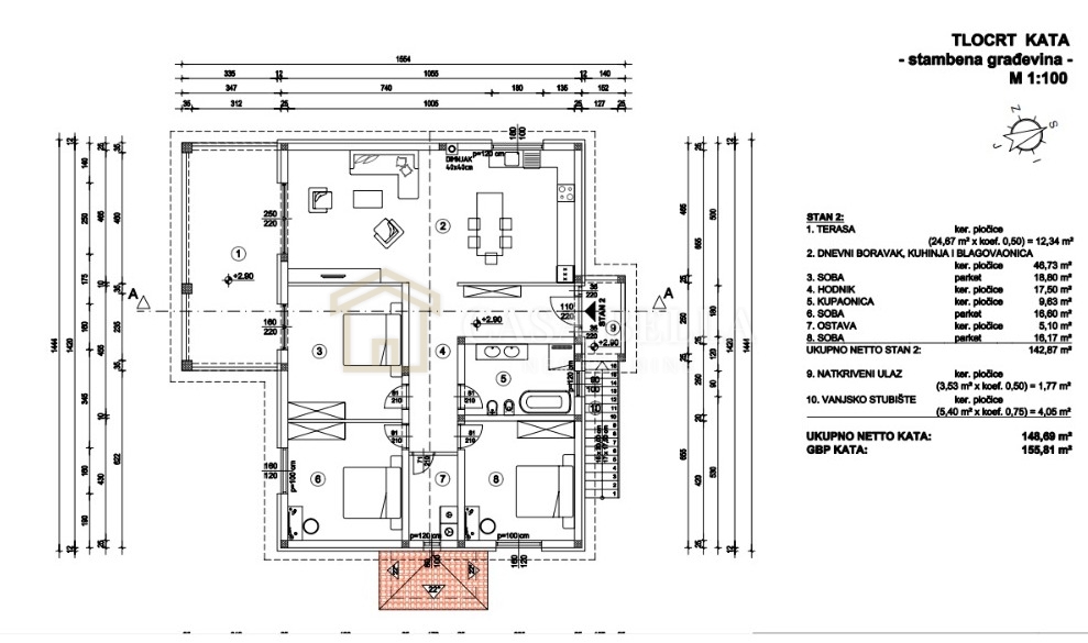
REC ID# 1275289 - SRDOČI