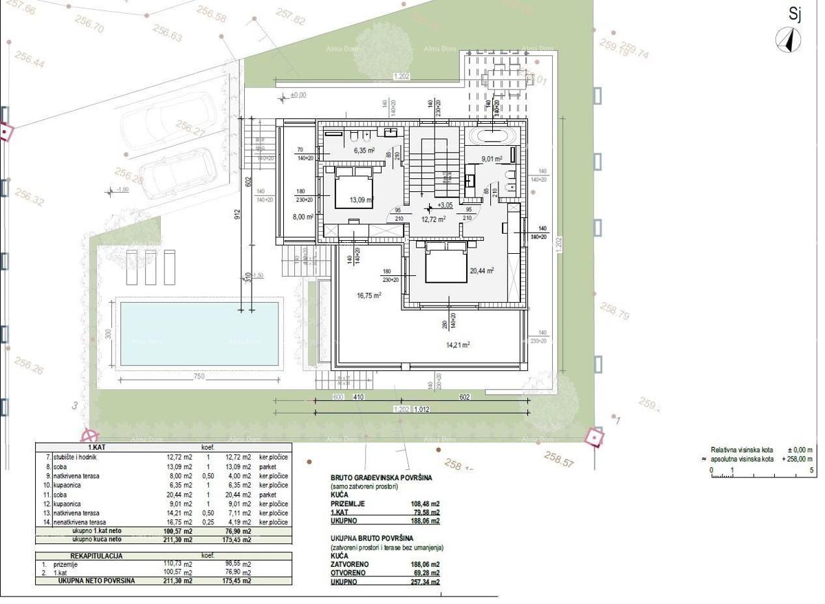
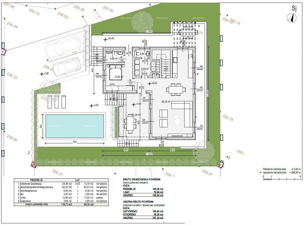
REC ID# 1259244 - SVETVINČENAT