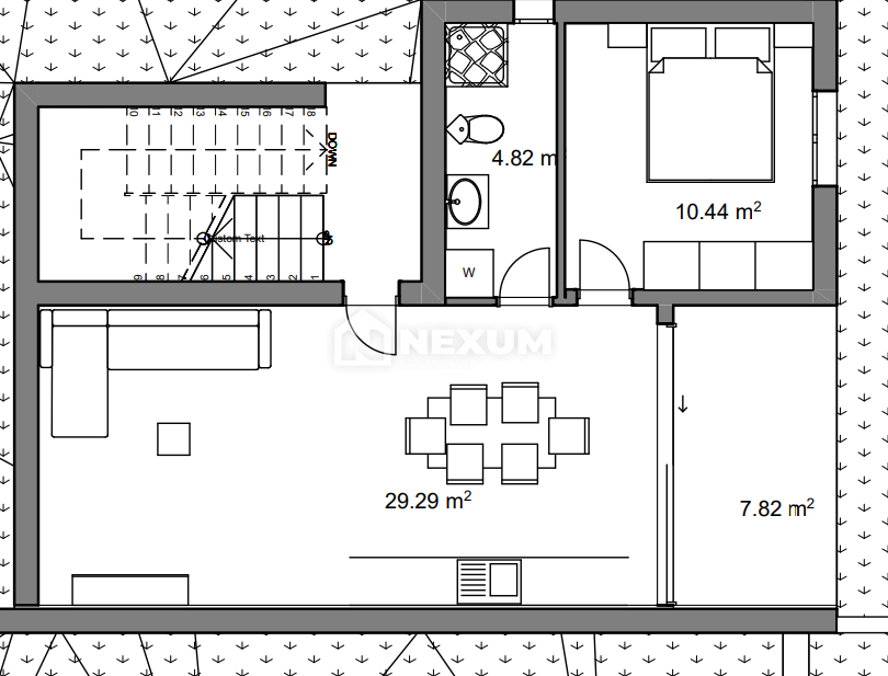
REC ID# 1248635 - TROGIR