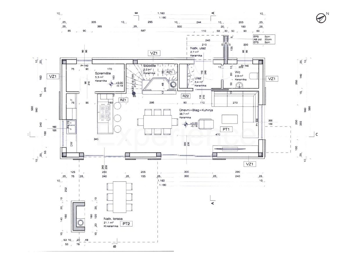
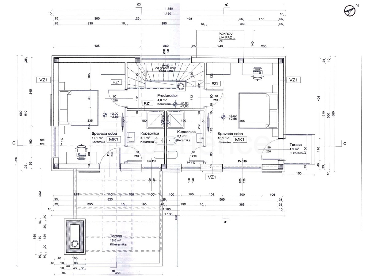
REC ID# 1187301 - VIŽINADA