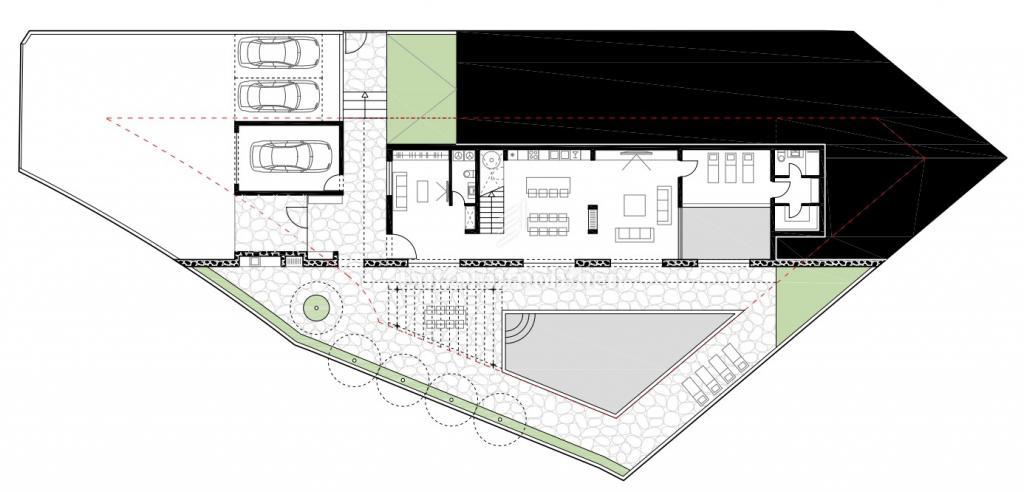
Terreno in città ZATON - con una superficie di 1003 m2

Foto dell'agenzia EURO IMMOBILIEN

REC ID 1071891

Dettagli