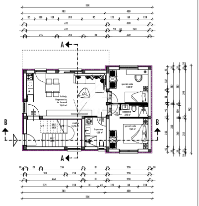
Casa in città VIR - con un prezzo di 950.000,00 € - con una superficie di 285 m2

Foto dell'agenzia Stella&Mar

REC ID 1086056

Dettagli