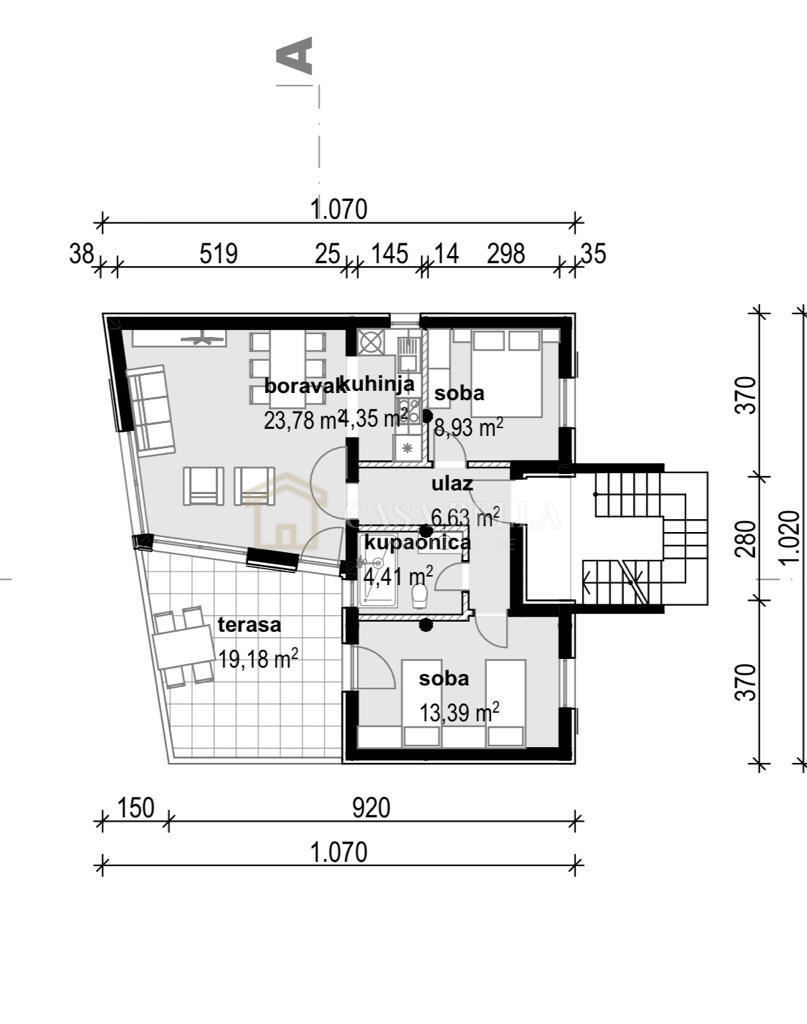
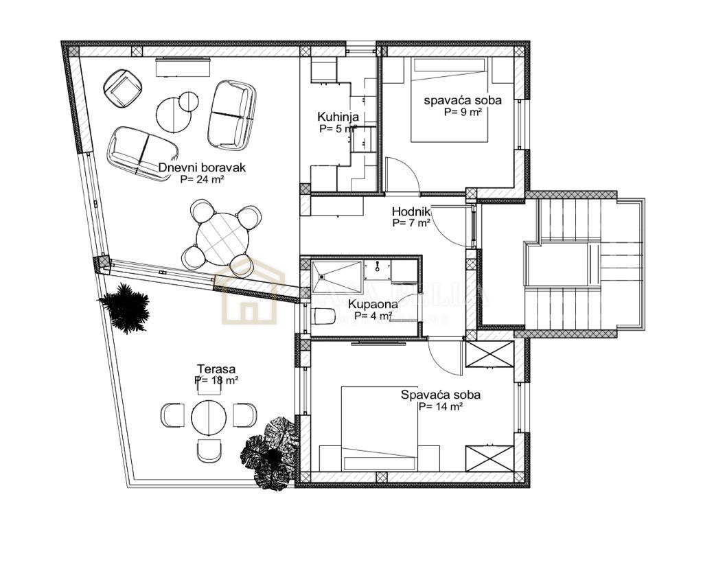
Appartamento in città CRIKVENICA - con un prezzo di 369.000,00 € - con una superficie di 80 m2

Foto dell'agenzia CASA BELLA NEKRETNINE

REC ID 1219889

Dettagli