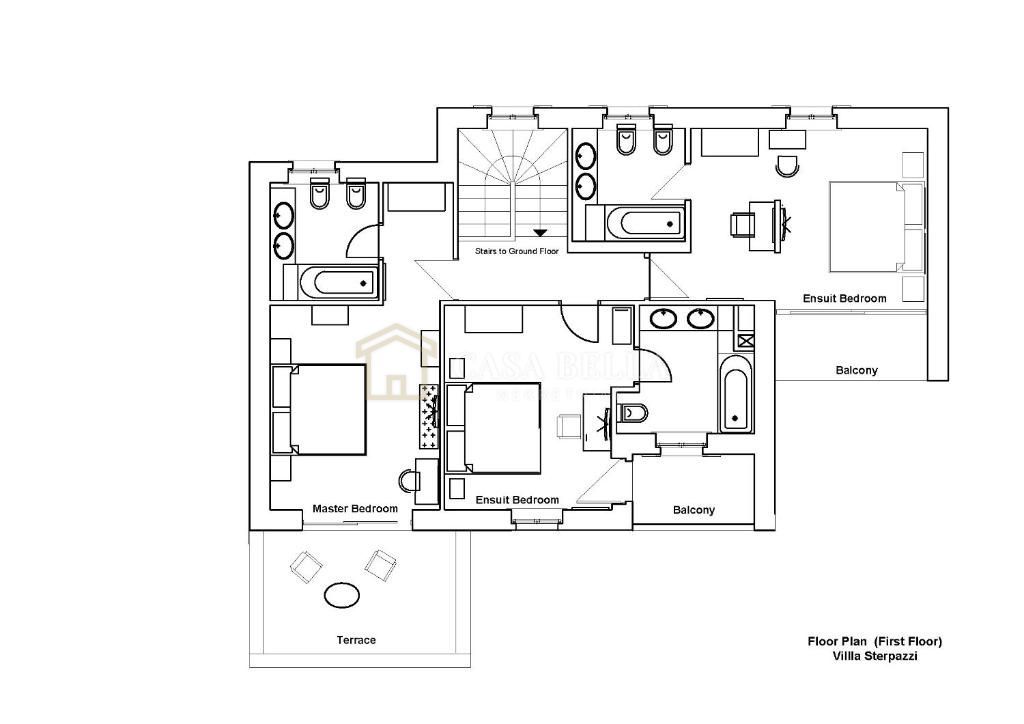
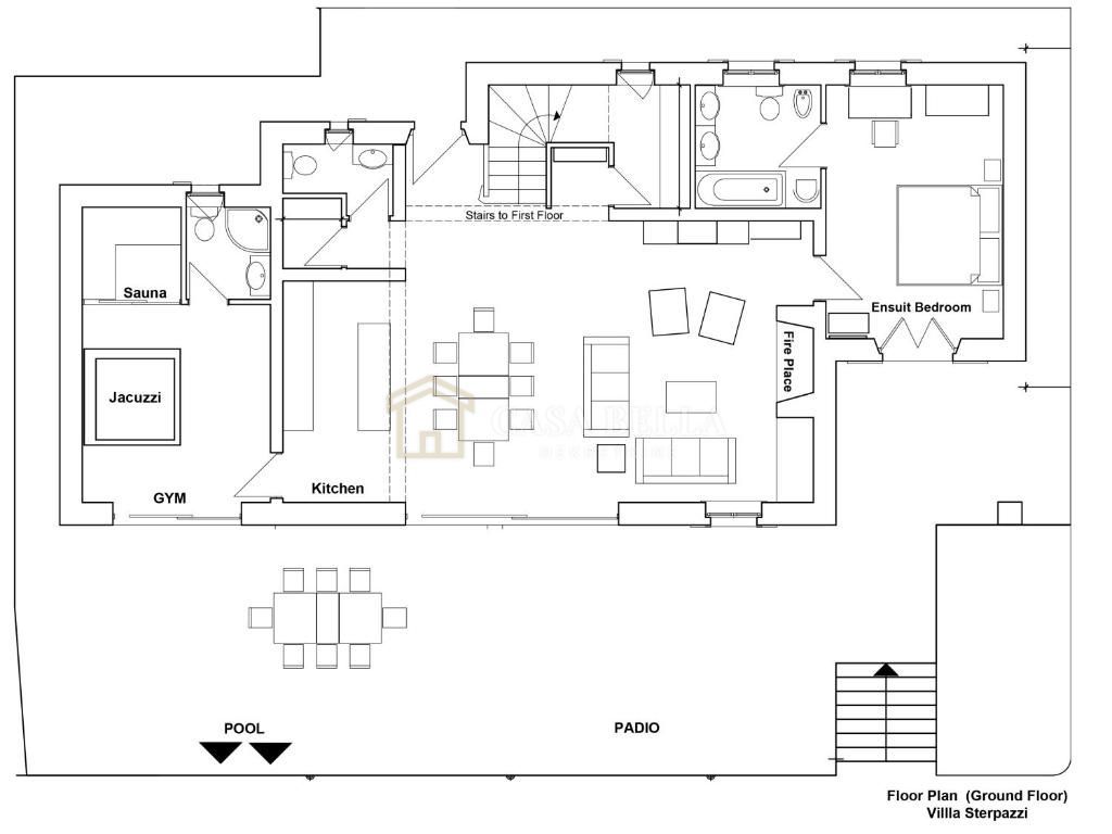
Casa in città STRPAČIĆI - con un prezzo di 1.390.000,00 € - con una superficie di 355 m2

Foto dell'agenzia CASA BELLA NEKRETNINE

REC ID 1220346

Dettagli