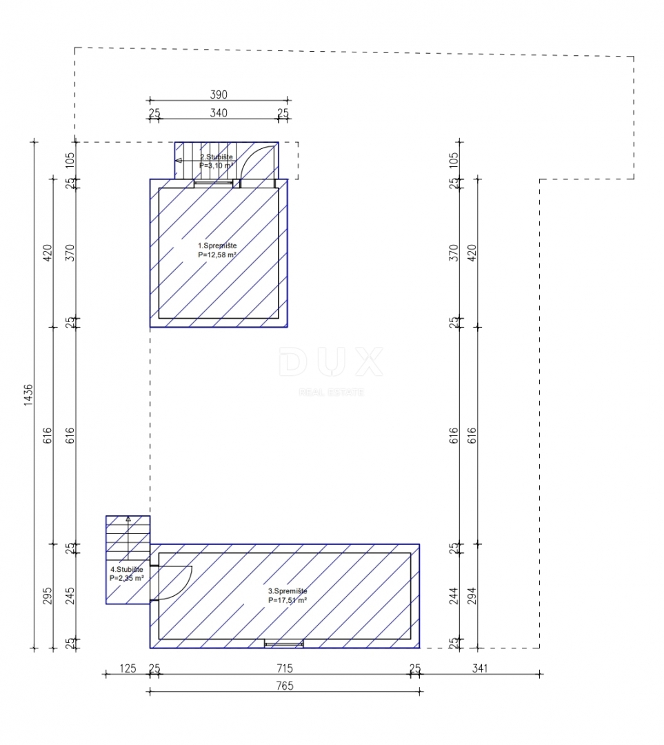
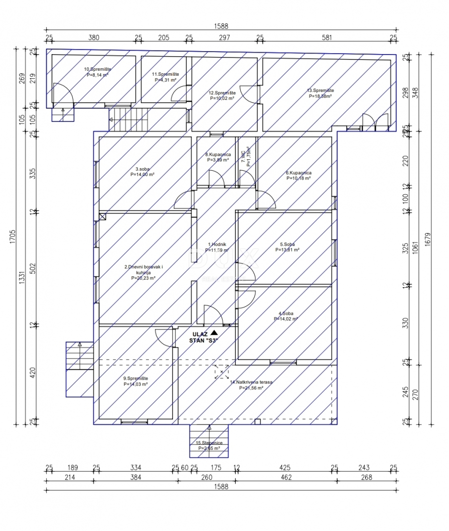
Casa in città SELINE - con un prezzo di 395.000,00 € - con una superficie di 90 m2

Foto dell'agenzia DUX Nekretnine

REC ID 1223272

Dettagli