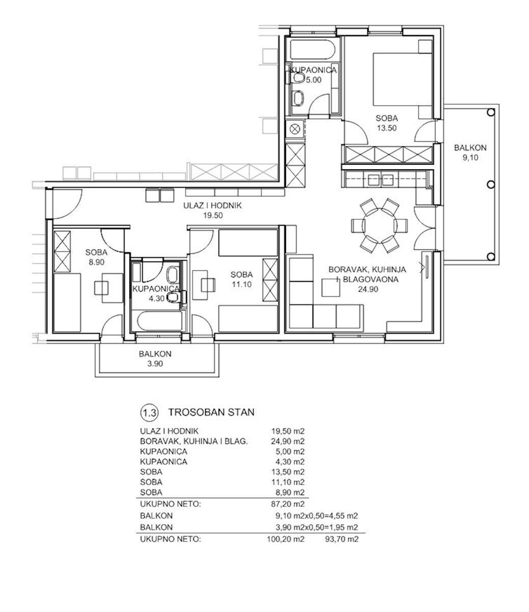
Appartamento in città SPLIT - con un prezzo di 940.000,00 € - con una superficie di 94 m2

Foto dell'agenzia TRGOSTAN

REC ID 1228529

Dettagli