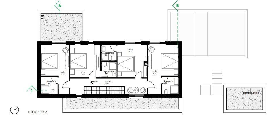
Casa in città LABIN - con un prezzo di 772.000,00 € - con una superficie di 283 m2

Foto dell'agenzia Alma Dom - Real Estate

REC ID 1230547

Dettagli