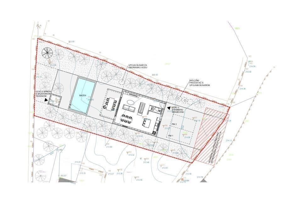
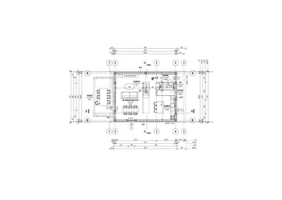
Casa in città SVETVINČENAT - con un prezzo di 438.000,00 € - con una superficie di 111 m2

Foto dell'agenzia Alma Dom - Real Estate

REC ID 1230557

Dettagli