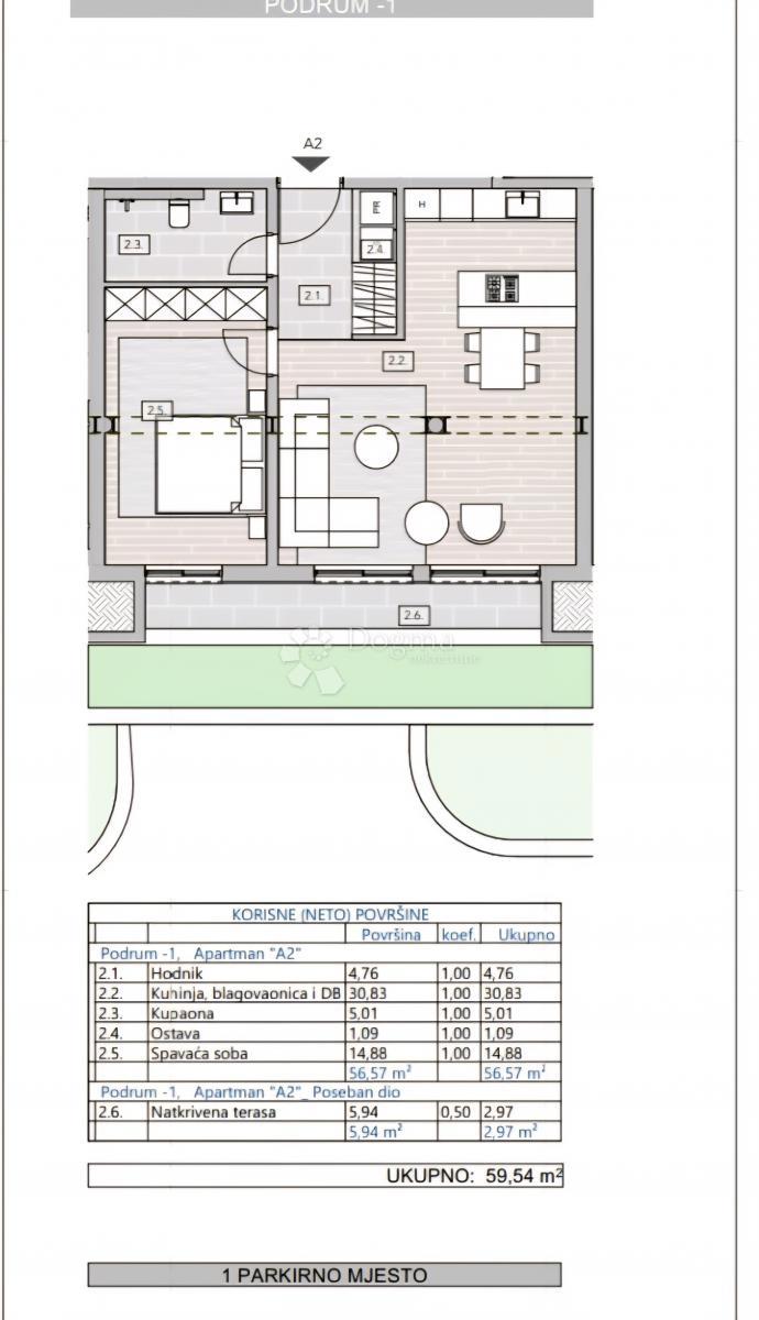
Appartamento in città OPATIJA - con una superficie di 60 m2

Foto dell'agenzia Dogma nekretnine d.o.o.

REC ID 1233100

Dettagli