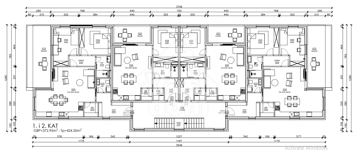
Casa in città DONJI STUPNIK - con un prezzo di 450.000,00 € - con una superficie di 104 m2

Foto dell'agenzia VAŠ DOM

REC ID 1233938

Dettagli