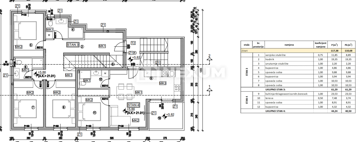
Appartamento in città KAŠTEL STARI - con un prezzo di 450.000,00 € - con una superficie di 177 m2

Foto dell'agenzia Nexum nekretnine

REC ID 1238254

Dettagli