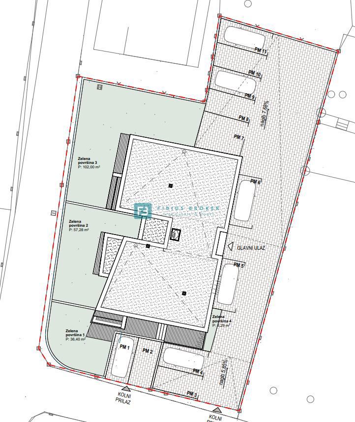
Appartamento in città VODICE - con un prezzo di 309.000,00 € - con una superficie di 81 m2

Foto dell'agenzia FIDIUS BROKER 2

REC ID 1248157

Dettagli