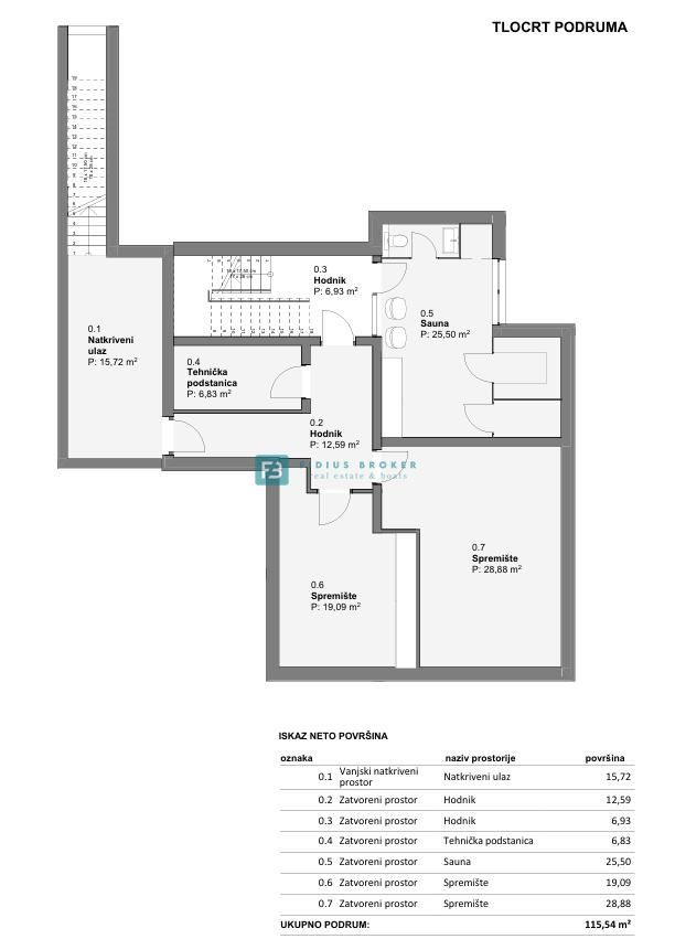
Casa in città VODICE - con un prezzo di 1.999.999,00 € - con una superficie di 589 m2

Foto dell'agenzia FIDIUS BROKER 2

REC ID 1248158

Dettagli