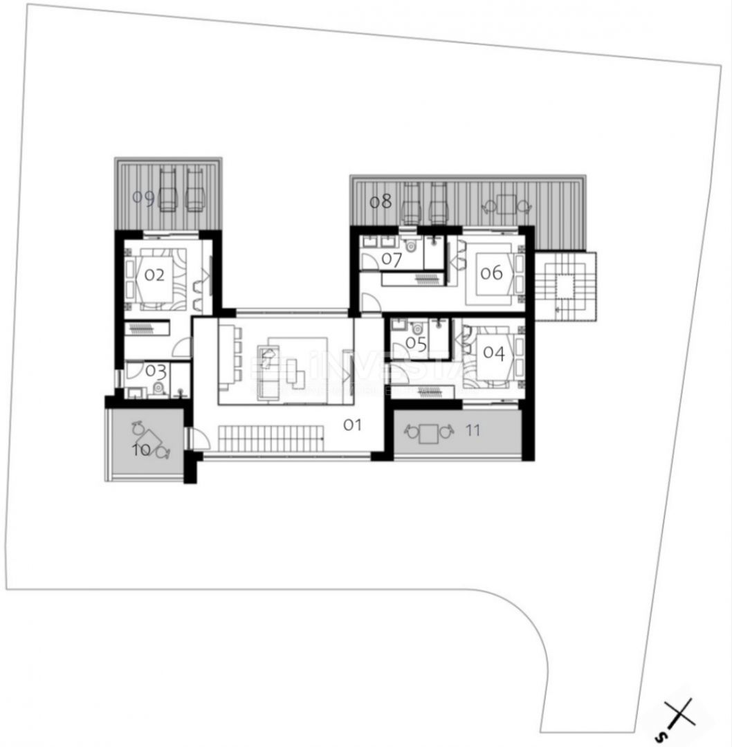
Casa in città MEDULIN - con un prezzo di 1.350.000,00 € - con una superficie di 417 m2

Foto dell'agenzia INVESTA Real Estate

REC ID 1252445

Dettagli