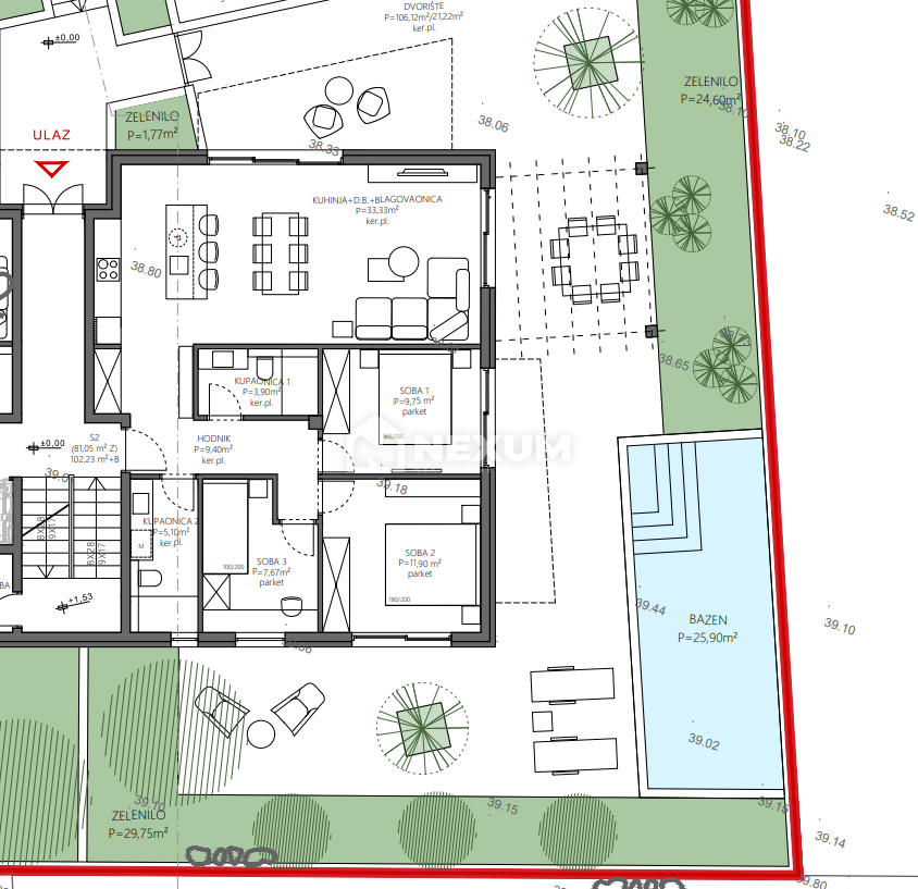
Appartamento in città OKRUG GORNJI - con un prezzo di 340.000,00 € - con una superficie di 91 m2

Foto dell'agenzia Nexum nekretnine

REC ID 1258521

Dettagli