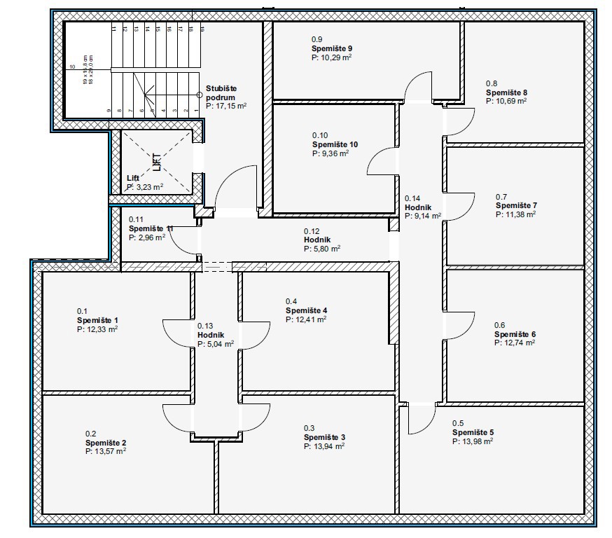
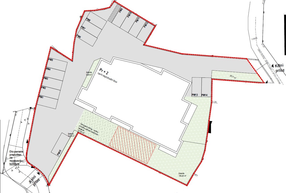
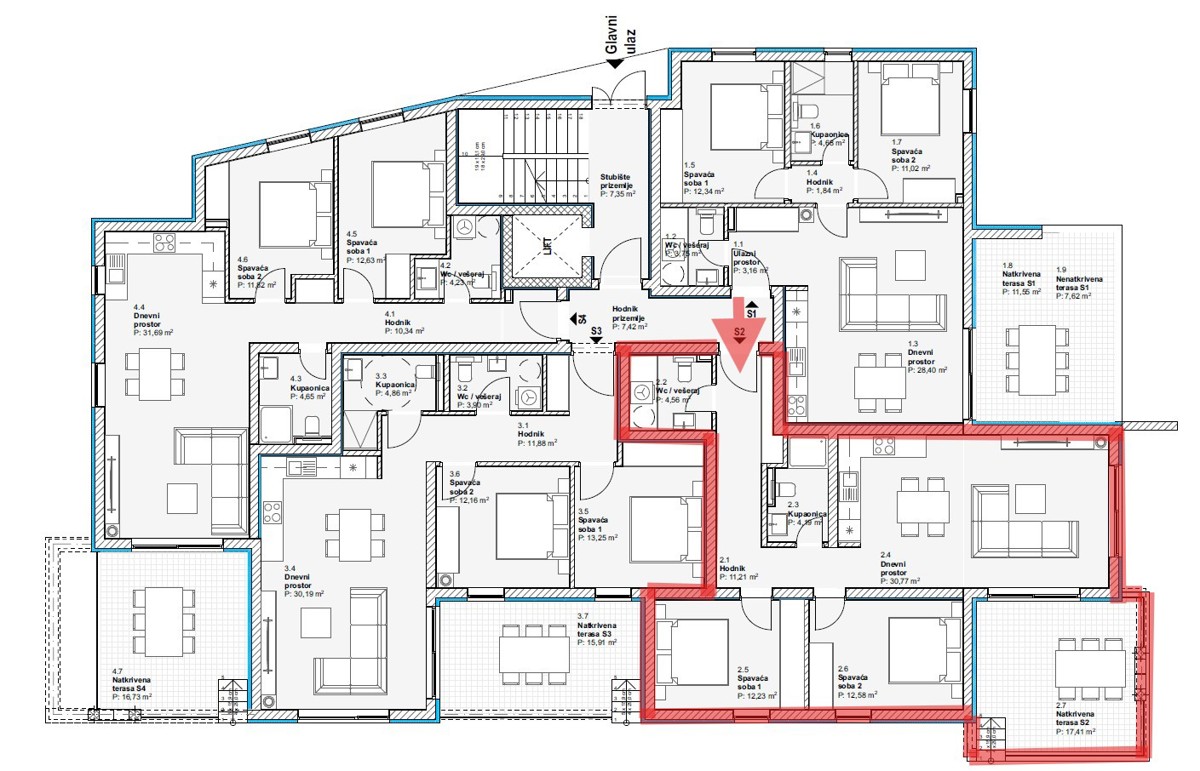
Appartamento in città VODICE - con un prezzo di 345.425,00 € - con una superficie di 84 m2

Foto dell'agenzia Naš Dom

REC ID 1258909

Dettagli