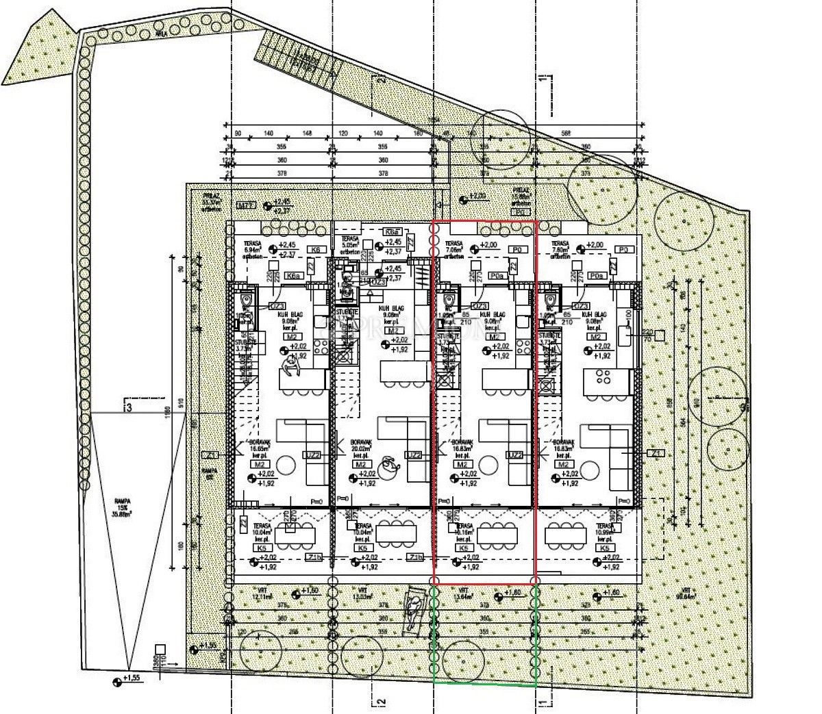
Appartamento in città KRK - con un prezzo di 525.000,00 € - con una superficie di 111 m2

Foto dell'agenzia PREMIUM nekretnine

REC ID 939497

Dettagli