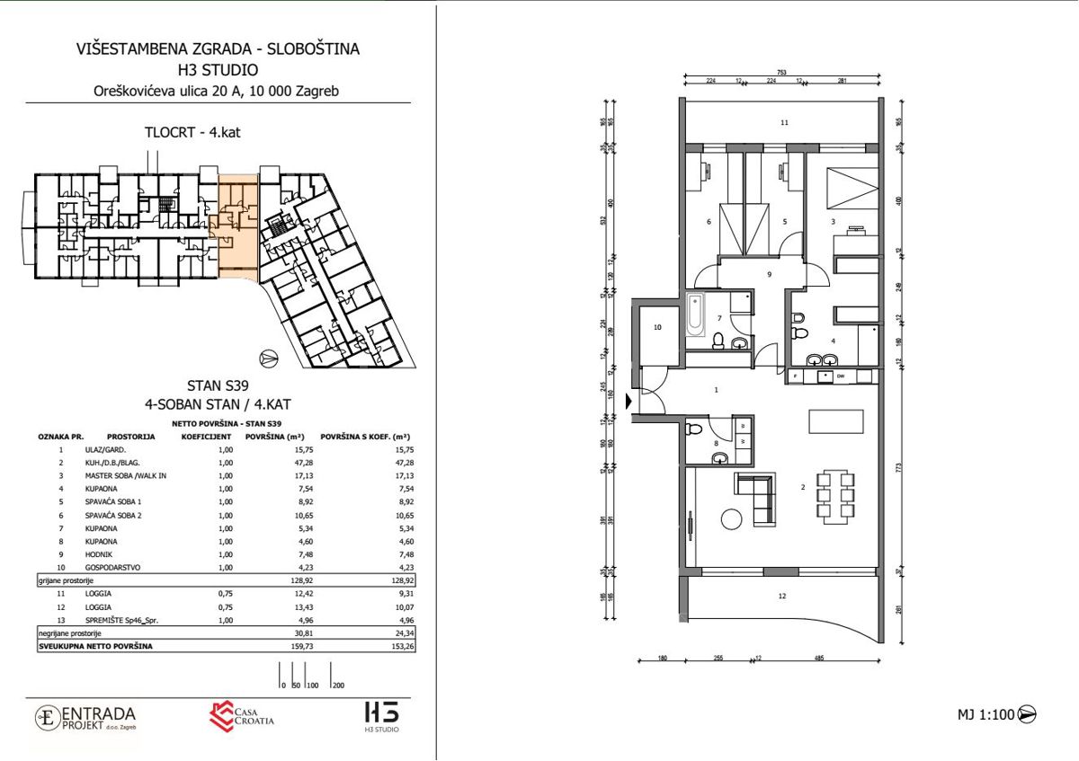
Квартиры в деревне BUNDEK - по цене 613.000,00 € - площадью 153 m2

Фото агентства Casa Croatia

REC ID 1116970

Подробности