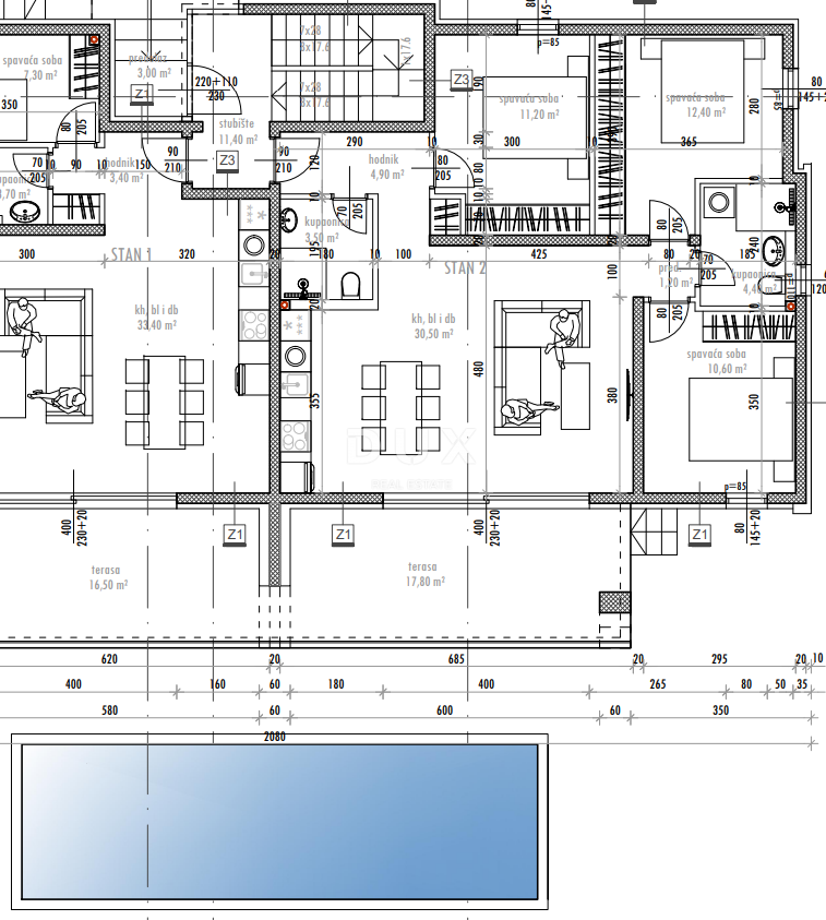
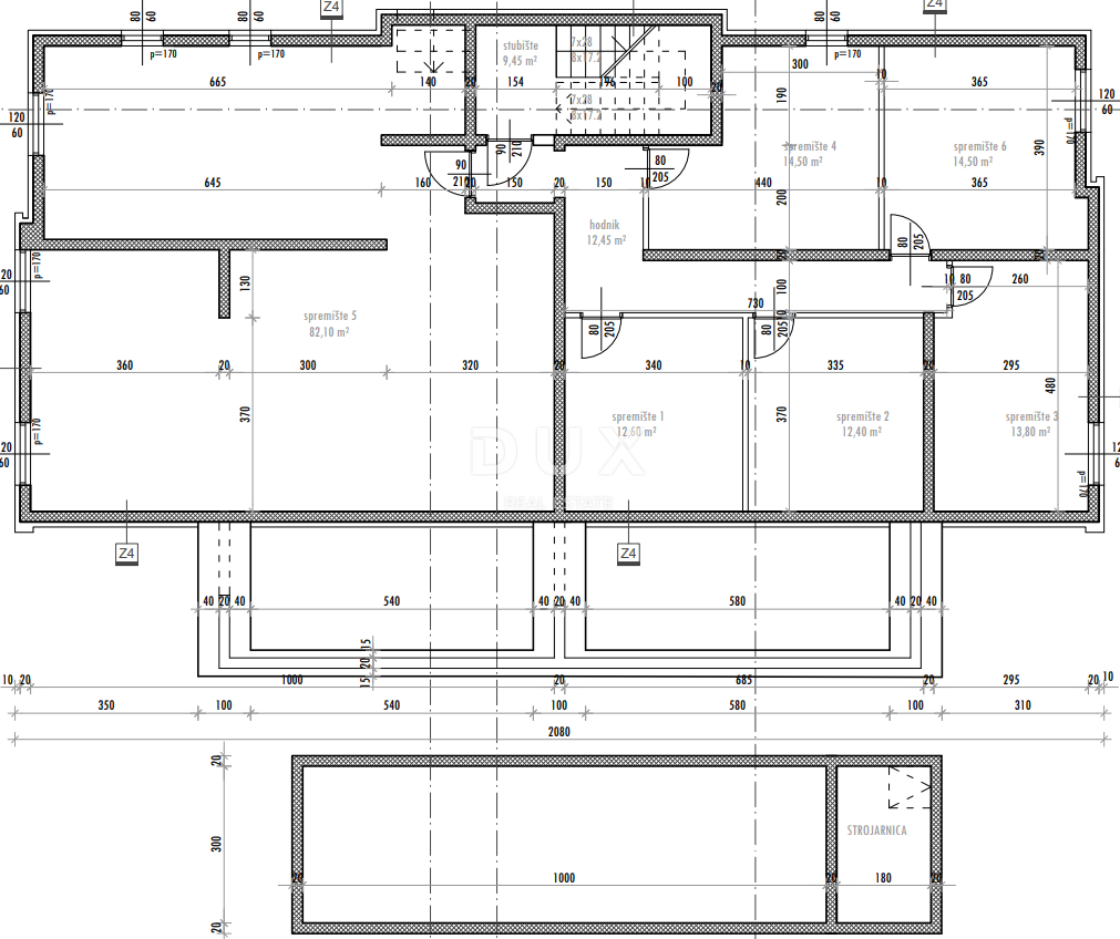
Квартиры в деревне SUKOŠAN - по цене 393.900,00 € - площадью 101 m2

Фото агентства DUX Nekretnine

REC ID 1226708

Подробности