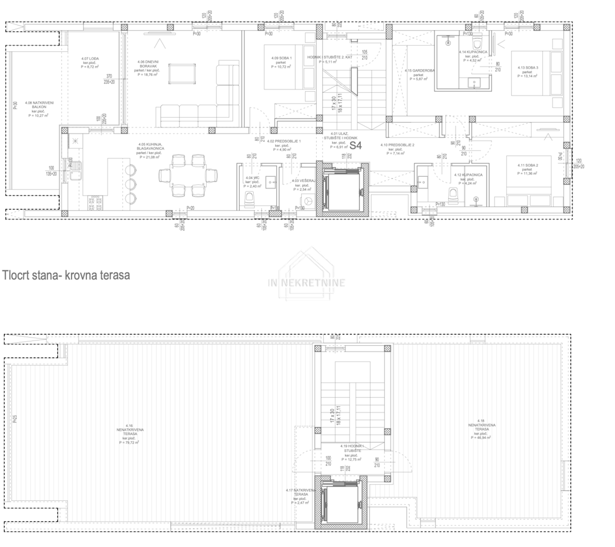
Квартиры в деревне KOŽINO - по цене 1.044.300,00 € - площадью 177 m2

Фото агентства IN NEKRETNINE

REC ID 1229426

Подробности