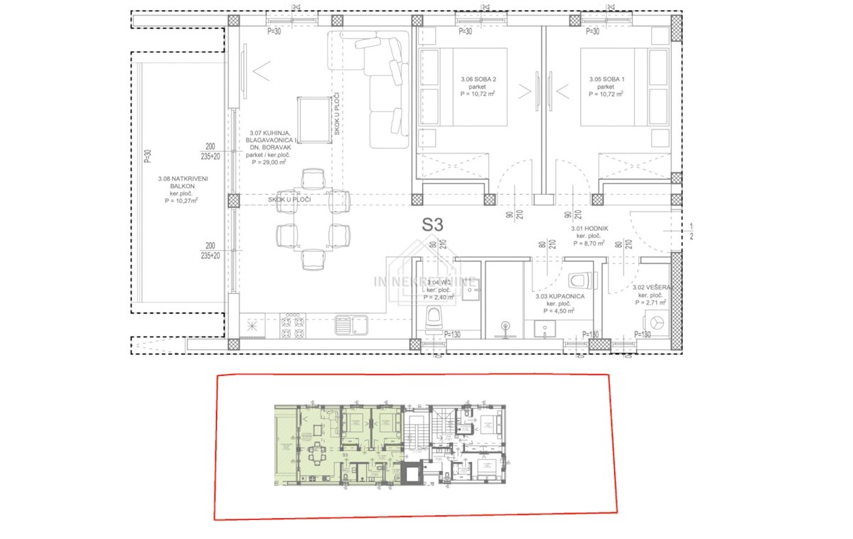
Квартиры в деревне KOŽINO - по цене 360.000,00 € - площадью 80 m2

Фото агентства IN NEKRETNINE

REC ID 1229427

Подробности