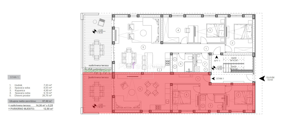
Квартиры в деревне NOVALJA - по цене 277.000,00 € - площадью 83 m2

Фото агентства RealEstate Novalja

REC ID 1231688

Подробности