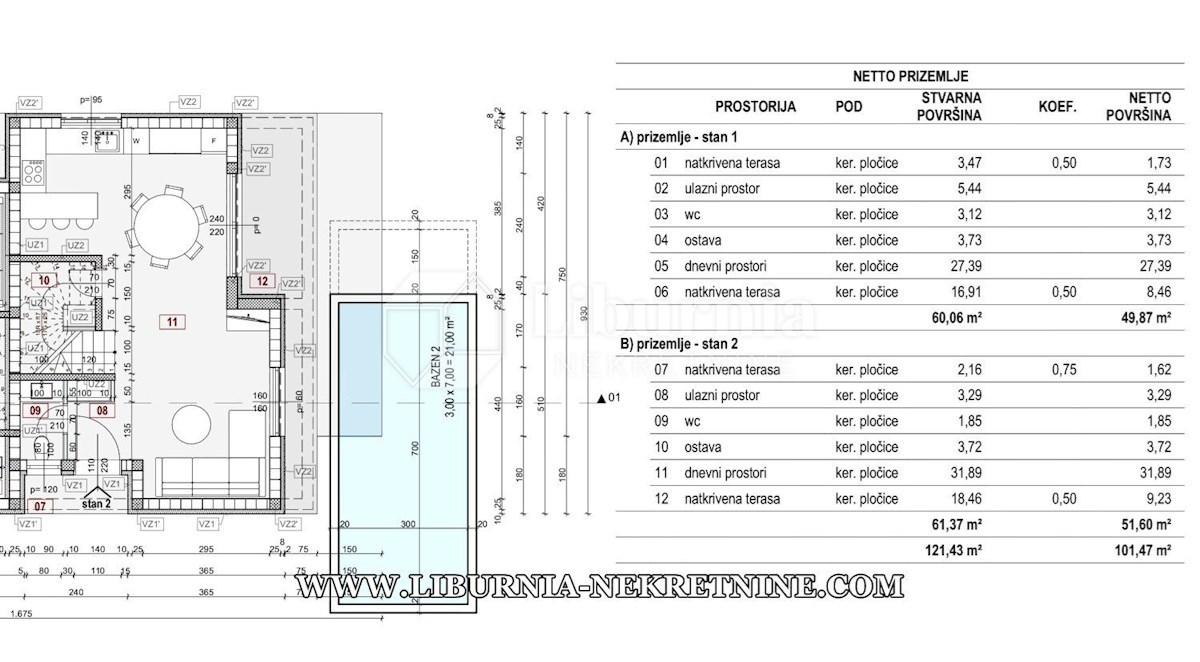
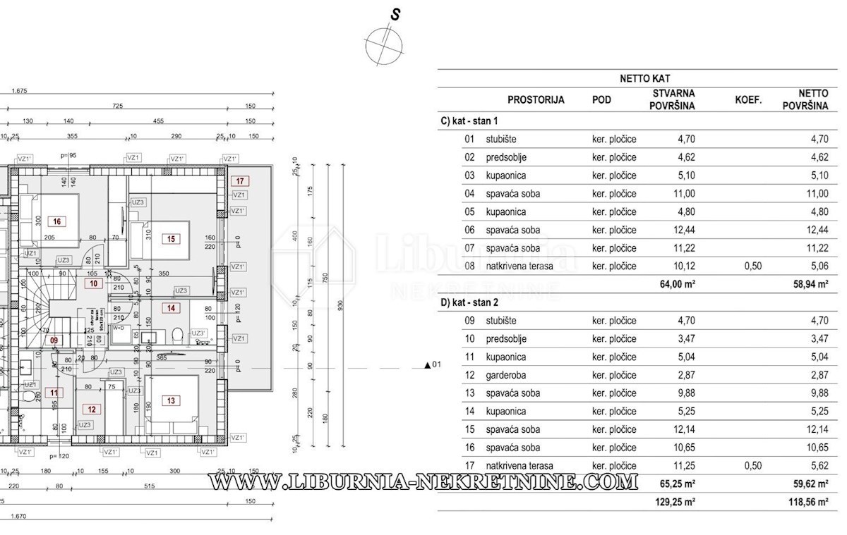
Дома в деревне KRK - по цене 520.000,00 € - площадью 111 m2

Фото агентства LIBURNIA nekretnine

REC ID 1231721

Подробности